

This upgrade of the Marine Biological Association campus will pave the way for new discoveries about ocean health.

Located within the historic environs of the Royal Citadel in Plymouth, a scheduled ancient monument, the existing home of the Marine Biological Association is a fine historic stone building in its own right. It was built specifically for the MBA in 1888, their original and current home. Their academic and scientific research covers a range of disciplines, including marine cell biology, ecology, animal behaviour and ecosystem change.
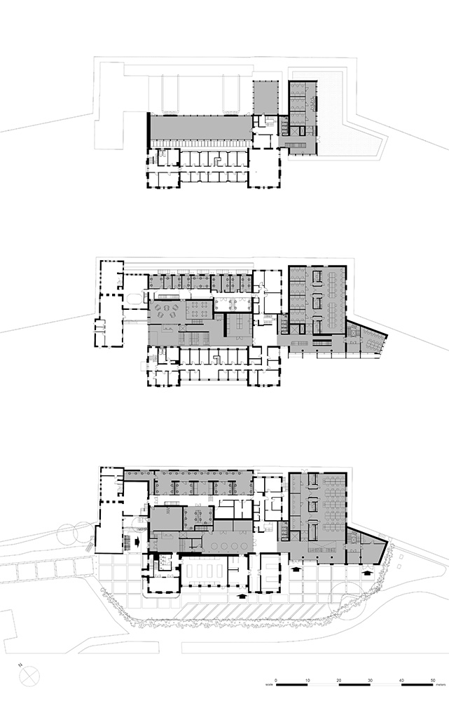
Burwell Architects were awarded this project through a competitive architectural design competition in 2018. We have since evolved the proposals and have submitted a planning application, which was consented 2021. The brief was to create a new main entrance and Education Centre, which we have position to the west of the building, accessed from a small courtyard. This links through to a new laboratory block to the east, while further research laboratories are sandwiched to the north adjacent to the Royal Citadel. The new interventions are formed by a Corten steel trabeated structure that sits above an ashlar Plymouth Limestone base. Deep reveals emphasise the structural grid articulating the facade and provide a level solar control to the south facing elevation. Phase 1, the extension of the North Labs, started construction in Autumn 2021.
Project Team
Client: Marine Biological Association
Lead Architect: Burwell Architects
Contractor: Nevada Construction
Services Engineer: Method
Structural Engineer: Clarke Bond
QS & Project Manager: Turner & Townsend
Project Data
Construction: 2021-25
GIA: Phase - 1,160 sqm, Phase 2 - 1,411 sqm, Phase 3 – 2,269 sqm Total GIA: 4,840 sqm
Form of Contract: Design & Build